本次為工廠辦公室改造裝修設計方案,辦公室改造面積700平方,設計師在辦公室改造中,以簡潔、開放、流動為設計理念,目的就是在氛圍上希望營造出完全開放,具有空氣感的流動空間。
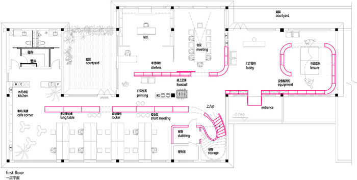
▼工廠辦公室一層平面

▼工廠辦公室二層平面

▼工廠辦公室入口

▼工廠辦公室過道

▼工廠辦公室隔斷

▼工廠辦公室儲藏區(qū)

▼工廠辦公室前臺

▼工廠辦公室前臺

▼工廠辦公室辦公區(qū)

▼工廠辦公室樓梯口

▼工廠辦公室樓梯

▼工廠辦公室二樓辦公區(qū)

▼工廠辦公室二樓辦公區(qū)

▼工廠辦公室二樓辦公區(qū)

▼工廠辦公室二樓辦公區(qū)

▼工廠總經理辦公室

本次工廠辦公室改造裝修設計方案講解到此結束,設計師在辦公室改造中,首先考慮的是如何讓上下層聯(lián)系起來,因此設計一開始氛圍上希望營造出完全開放,具有空氣感的流動空間。
辦公室設計案例 |辦公室設計風格 | 辦公室裝修攻略 | 辦公室軟裝設計 | 嵐禾資訊 | 免責聲明 | 服務流程 | 聯(lián)系嵐禾
地址:杭州市上城區(qū)南星橋街道,復廣支二路海運國際大廈A座1205 郵編:310000 業(yè)務咨詢:0571-88091570 傳真:0571-88091570 E-mail: 1467724601@qq.com
辦公室裝修:m.btchangqing.com